Jöfur logo
Skráð 27. jan. 2026

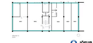
Síðumúli 13

Atvinnuhúsn.Höfuðborgarsvæðið/Reykjavík/Háaleitis- og Bústaðahverfi-108
86 m2
Verð
Tilboð
Jöfur ehf.
Mynd af Axel Ólafsson
Axel Ólafsson
Löggiltur fasteignasali
Sérinngangur
Til leigu: 86 m² lager- og verkstæðisrými að meðtalinni sameign á jarðhæð, staðsett bakatil við Síðumúla 13. 
Stórt malbikað bílaplan er við húsið. Salerni er í sameign hússins. Rýmið er merkt 0003 á grunnmynd. Ekki VSK húsnæði.
Auk þess er laus tæplega 30 m² skrifstofa á þriðju hæð hússins í skrifstofukjarna á besta stað í Múlunum. 

Hafðu samband við Axel Ólafsson, löggiltan fasteignasala í síma 661-2507, axel@jofur.is eða Ólaf Jóhannsson, löggiltan fasteignasala og leigumiðlara í síma 824-6703, olafur@jofur.is til að fá upplýsingar um eignina.

Sambærilegar eignir

Opna eign
Til leigu
Image
Opna eign
Síðumúli 28
108 Reykjavík
116 m2
Skrifstofuhúsnæði
Tilboð
Opna eign
Til leigu
Image
Opna eign
Lágmúli 6-8
108 Reykjavík
83 m2
Skrifstofuhúsnæði
Tilboð
Opna eign
Til leigu
Image
Opna eign
Lágmúli 4
108 Reykjavík
85.3 m2
Skrifstofuhúsnæði
4
Tilboð
Opna eign
Til leigu
Image
Opna eign
Suðurlandsbraut 22
108 Reykjavík
113 m2
Skrifstofuhúsnæði
2
Tilboð
Jöfur fasteignasala sérhæfir sig í faglegri ráðgjöf og þjónustu við kaup, sölu, leigu og verðmat atvinnuhúsnæðis, með persónulegri aðstoð fyrir kaupendur, seljendur, leigjendur og fjármálastofnanir. Hafðu samband í síma 534-1020 til að ræða þínar þarfir.
Hafðu samband
sala@jofur.isS: 5341020
Suðurlandsbraut 4a
kt. 510507-0960
Hlekkir
© Copyright 2026 - Jöfur
Knúið af
Fasteignaleitin