Jöfur logo
Skráð 26. feb. 2026

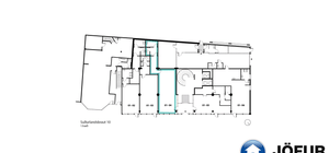
Suðurlandsbraut 10

Atvinnuhúsn.Höfuðborgarsvæðið/Reykjavík/Háaleitis- og Bústaðahverfi-108
105 m2
Verð
Tilboð
Byggt 2018
Sameiginlegur
Til leigu um 105 m² verslunarrými á jarðhæð við Suðurlandsbraut 10.

Fljótlega losnar tæplega 105 m² rými sem getur hentað fyrir verslun eða aðra starfsemi sem þarf gott aðgengi. Stórir gluggar og mikill sýnileiki frá götu.
Merkt nr. 01-04 á grunnmynd. Við leiguverð bætist virðisaukaskattur. 

Hafðu samband við Axel Ólafsson, löggiltan fasteignasala í síma 661-2507, axel@jofur.is eða Ólaf Jóhannsson, löggiltan fasteignasala og leigumiðlara í síma 824-6703, olafur@jofur.is til að fá upplýsingar um eignina.
 

Sambærilegar eignir

Opna eign
Image
Opna eign
Síðumúli 29
108 Reykjavík
100.8 m2
Verslunarhúsnæði
516 þ.kr./m2
52.000.000 kr.
Opna eign
Til leigu
Image
Opna eign
Síðumúli 28
108 Reykjavík
116 m2
Skrifstofuhúsnæði
Tilboð
Opna eign
Til leigu
Image
Opna eign
Ármúli 21
108 Reykjavík
139 m2
Skrifstofuhúsnæði
1
Tilboð
Opna eign
Til leigu
Image
Opna eign
Síðumúli 7-9
108 Reykjavík
112.4 m2
Skrifstofuhúsnæði
257.000 kr.
Jöfur fasteignasala sérhæfir sig í faglegri ráðgjöf og þjónustu við kaup, sölu, leigu og verðmat atvinnuhúsnæðis, með persónulegri aðstoð fyrir kaupendur, seljendur, leigjendur og fjármálastofnanir. Hafðu samband í síma 534-1020 til að ræða þínar þarfir.
Hafðu samband
sala@jofur.isS: 5341020
Suðurlandsbraut 4a
kt. 510507-0960
Hlekkir
© Copyright 2026 - Jöfur
Knúið af
Fasteignaleitin