Jöfur logo
Skráð 6. jan. 2025

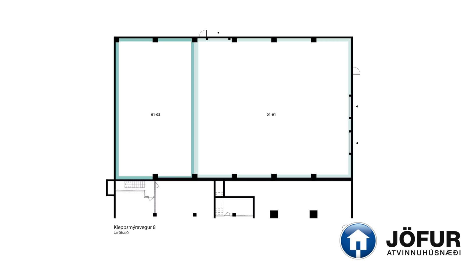
Kleppsmýrarvegur 8

Atvinnuhúsn.Höfuðborgarsvæðið/Reykjavík/Laugardalur-104
562.2 m2
Verð
Tilboð
Jöfur ehf.
Mynd af Helgi Karlsson
Helgi Karlsson
Löggiltur fasteignasali
Sérinngangur
Til leigu 562,2 m² lager- og iðnaðarhúsnæði við Kleppsmýrarveg. Laust strax!
Húsnæðið er að mestu einn opinn lagersalur. Merkt 01-01 á teikningu. VSK leggst ekki við leigufjárhæðina. 

Nánari upplýsingar veitir Helgi Már Karlsson löggiltur fasteignasali í síma 897-7086 hmk@jofur.is eða Ólafur Jóhannsson löggiltur fasteignasali í síma 824-6703, olafur@jofur.is til að fá upplýsingar um eignina eða aðrar eignir.

Sambærilegar eignir

Opna eign
Til leigu
Image
Opna eign
Köllunarklettsvegur 1
104 Reykjavík
569 m2
Skrifstofuhúsnæði
Tilboð
Opna eign
Image
Opna eign
Borgartún 22
105 Reykjavík
526.2 m2
Skrifstofuhúsnæði
13
Fasteignamat 192.800.000 kr.
Tilboð
Opna eign
Image
Opna eign
Þverholt 14
105 Reykjavík
529 m2
Skrifstofuhúsnæði
473 þ.kr./m2
250.000.000 kr.
Opna eign
Til leigu
Image
Opna eign
Þverholt 14
105 Reykjavík
529 m2
Skrifstofuhúsnæði
Tilboð
Jöfur fasteignasala sérhæfir sig í faglegri ráðgjöf og þjónustu við kaup, sölu, leigu og verðmat atvinnuhúsnæðis, með persónulegri aðstoð fyrir kaupendur, seljendur, leigjendur og fjármálastofnanir. Hafðu samband í síma 534-1020 til að ræða þínar þarfir.
Hafðu samband
sala@jofur.isS: 5341020
Suðurlandsbraut 4a
kt. 510507-0960
Hlekkir
© Copyright 2026 - Jöfur
Knúið af
Fasteignaleitin